Проект
Freedom

    Фундамент:
    • Железобетонные сваи, 4 м
    Капитальная конструкция дома:
    • Комбинированная (металл, дерево), плитный утеплитель Парок (Paroc), 200 мм
    Кровля скатная:
    • Односкатная, профнастил, двутавровая балка, утепление Парок (Paroc), 300 мм
    Окна:
    • Двухкамерный стеклопакет, 75 профиль, с ламинацией
    Коммуникации:
    • По согласованию с заказчиком
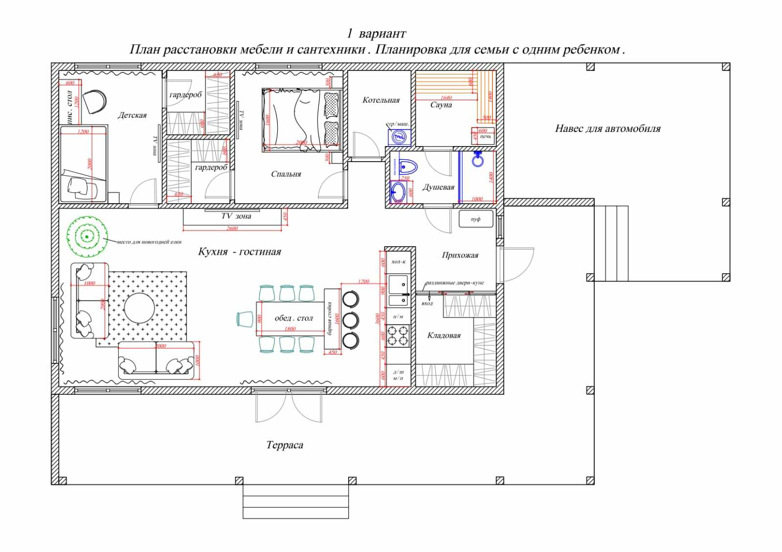
    3 спальни
    Сауна, душевая, ванная
    2 гардероба, кладовая
    Терраса
    Кухня-гостиная
    ПОЭТАЖНЫЙ ПЛАН
    Подходит под сельскую ипотеку
    Нажмите на иконку банка, чтобы рассчитать кредит