Проект
Прованс
Фундамент:
  • монолитная плита 200 мм и подбетонный слой 100 мм
Капитальная конструкция дома:
  • стены из теплоблоков (теплоблок - это четырехслойный блок, состоящий из бетона, утеплителя 150 мм и фасада). Общая толщина блока 350 мм.
Кровля скатная:
  • Металлочерепица Монтерей
Окна:
  • Двухкамерный стеклопакет, 62 профиль, открывающиеся
Коммуникации:
  • По согласованию с заказчиком
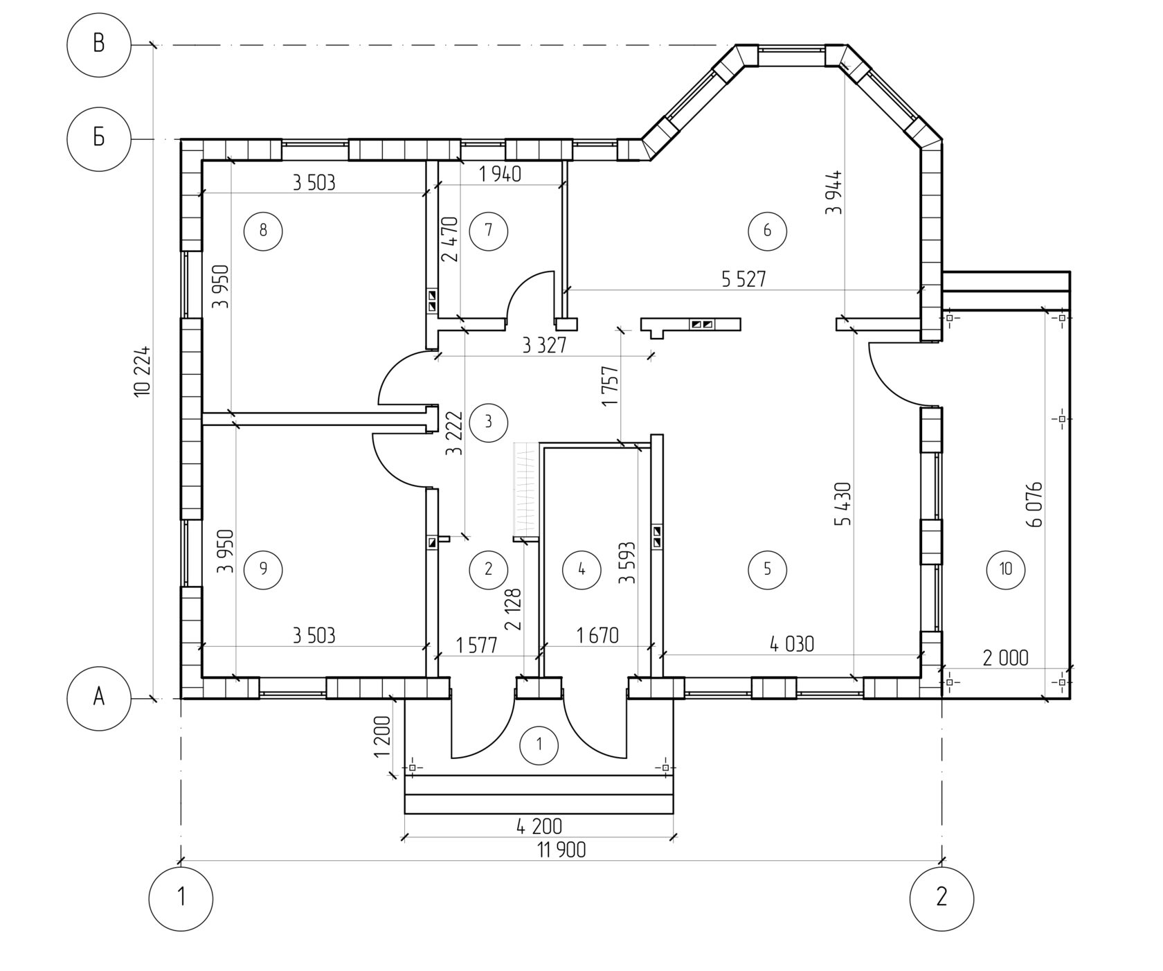
2 спальни
1 санузел
Гостиная
Терраса
Кухня, столовая
ПОЭТАЖНЫЙ ПЛАН
Подходит под сельскую ипотеку
Нажмите на иконку банка, чтобы рассчитать кредит